| Zain Oman





Q595

63889 OMR

(Price included 5% VAT = 67083.45 OMR)


  • 261 m2
  • 5 Bedroom
  • 7 Bathroom

  • #

Description

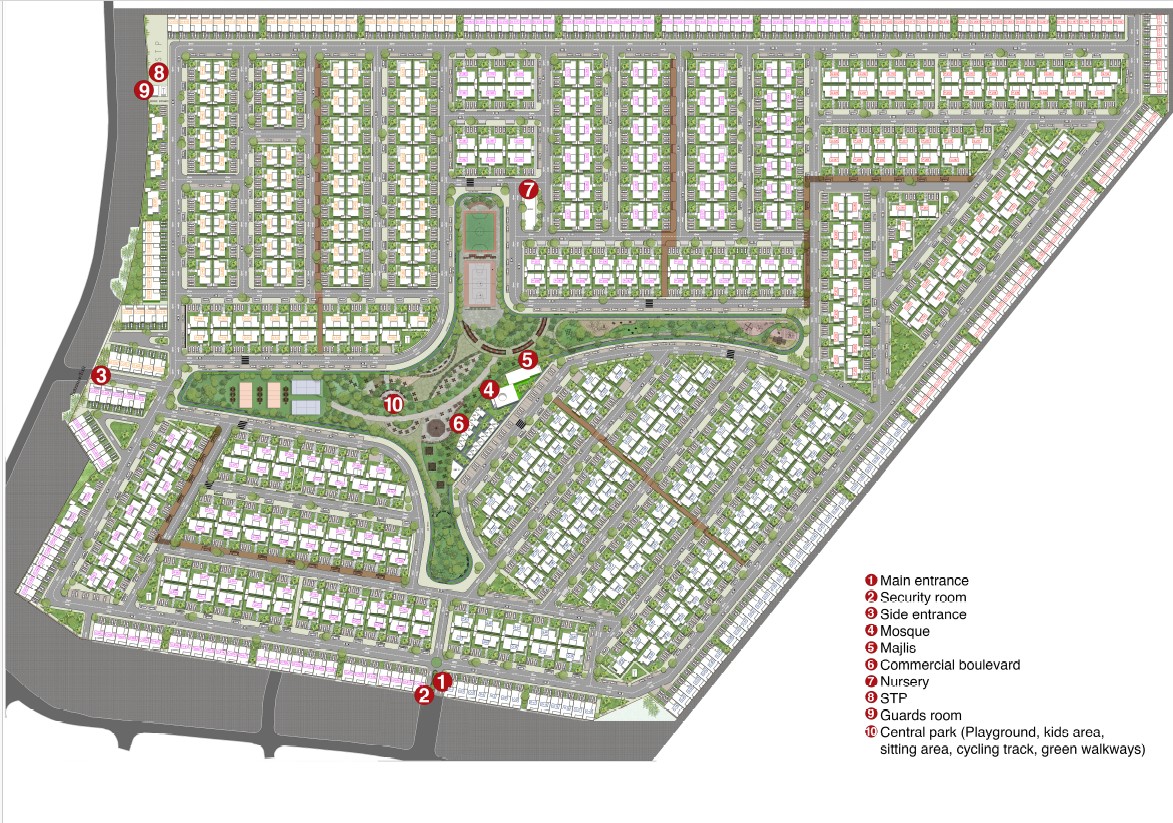
Husn Al Zain is a residential complex (integrated city) consisting of 637 residential units of different sizes and high-quality specifications. The complex contains open green spaces and also includes a public garden, a nursery for children, a mosque with a majlis and shops for the well-being of residents. The complex also contains private parking for each residential unit. To ensure the safety of residents, regular guard service is available around the clock. The complex also contains private parking for each residential unit. To ensure the safety of residents, 24\7 patrol security service is available.

Details

Price

63889 OMR

TotalBUA

261 m2

Land Area

350 m2

Bedroom

5

Bathroom

7

Study Room

No

Toilet

1

Maid's Rooms

1

Car Parking

3

Swimming Pools

No

Facility - A

1

Douments

Location